ALTE SCHULE / NEUE SCHULE
Das ehemalige Diesterweg-Gymnasium im Brunnenviertel: Vom Experimentalbau der 1970er zum offenen Bildungscampus?
Zeit:
12. August 2019, 18:30 Uhr
Ort:
ExRotaprint, Projektraum „Glaskiste“, Gottschedstr. 4, 13357 Berlin
Das ehemalige Diesterweg-Gymnasium entstand in den 1970ern als markante Fusion von Quartierszentrum und Schule im Berliner Brunnenviertel (Architekten: Pysall-Jensen-Stahrenberg, 1974-77). Seit es aufgegeben wurde, setzt sich die stadtteilbasierte Initiative ps wedding für eine Reaktivierung als Kultur- und Nachbarschaftszentrum ein. Hier soll ein Campus entstehen, der vielfältige Bildungsangebote mit Schul- und Wohnungsbau vereinen kann. Wie architektonische und zivilgesellschaftliche Ressourcen für neue offene Bildungsmodelle genutzt werden können, diskutieren u.a. Tom Holert (Kurator HKW-Projekt Bildungsschock), Angela Million (Professorin für Städtebau, TU Berlin) und ps wedding mit Vertreter*innen im Brunnenviertel aktiver und stadtpolitischer Organisationen.
Die Diskussionsrunde setzt sich mit Fragen auseinander, die durch den aktuellen Konflikt um eine Umnutzung des Gebäudes oder eine Neubebauung des gesamten Geländes aufgeworfen werden:
- Wie aktuell sind die experimentellen Raumkonzepte der 1970er Jahre, die in dem Gebäude als multifunktionales Zentrum für Bildung und Kultur materialisiert sind?
- Wie können die architektonischen und räumlichen Ressourcen des erhaltenswerten Schulbaus als städtebaulicher Bezugspunkt und soziales Zentrum der Nachbarschaft reaktiviert werden?
- Wie kann eine wiederholte Kahlschlagpolitik und ausschließlich monofunktionale Nutzung des Grundstücks in einem Quartier mit eklatantem soziokulturellen Bedarf verhindert werden?
- Wie können lokale Akteur*innen in die Entwicklung und Programmierung zeitgemäßer Bildungslandschaften einbezogen werden?
- Was können Initiativen von unten zur Schaffung von Wohnraum, sozialen und kulturellen Strukturen für die Stadtentwicklung leisten, wenn sie in Politik und Verwaltung verlässliche Partner finden?
- Wie können in einer sich rasant verdichtenden Stadt vielfältige soziale und kulturelle Bedarfe in Einklang gebracht werden – leistbarer Wohnraum, Schul- und Kitaversorgung, soziale und kulturelle Infrastrukturen jenseits kommerziellen Verwertungsdrucks?
Alle sind herzlich eingeladen mitzudiskutieren.
Organisation:
Elke Beyer, Anke Hagemann
Habitat Unit | Fachgebiet Internationaler Städtebau | Institut für Architektur
Technische Universität Berlin
Kontakt:
Elke Beyer, Anke Hagemann
e.beyer@tu-berlin.de
anke.hagemann@tu-berlin.de
www.habitat-unit.de
Mehr Informationen:
www.stadtentwicklung.berlin.de
Das Diesterweg-Gymnasium im Brunnenviertel (Pysall-Jensen-Stahrenberg, 1974-77) nach seiner Fertigstellung, Blick Richtung Putbusser Straße. Foto Hans-Joachim Pysall.
Eingangsbereich Swinemünder Straße und ehemalige Stadtbibliothek heute. Foto Oliver Clemens.
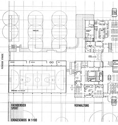
EG-Grundriss des Diesterweg-Gymnasiums mit innerer und äußerer Verbindung zwischen Wohnstraßen im Brunnenviertel (Pysall-Jensen-Stahrenberg, 1974-77), linke Teilansicht.
EG-Grundriss des Diesterweg-Gymnasiums mit innerer und äußerer Verbindung zwischen Wohnstraßen im Brunnenviertel (Pysall-Jensen-Stahrenberg, 1974-77), rechte Teilansicht.
Foyer (Schulstraße) des ehemaligen Diesterweg-Gymnasiums mit eingelagertem Mobiliar, 2019. Foto Ludger Blanke.
-
Zurück zur
Übersicht
